Контакти

ДО ДЕЯКИХ РОЗДІЛІВ САЙТУ ІНФОРМАЦІЯ

ТИМЧАСОВО

ОБМЕЖЕНА

E-mail: lvug@ukr.net

тел. +38 050 3150615

+38 093 4954095

Календар
Квітень 2026
П В С Ч П С Н
« Бер   Тра »
 12345
6789101112
13141516171819
20212223242526
27282930  
Архів

Відповідно до постанови Кабінету Міністрів України від 16 грудня 2020 р. №1266 повідомляємо:

ДП «Львіввугілля» оголосило конкурентної процедуру закупівлі.

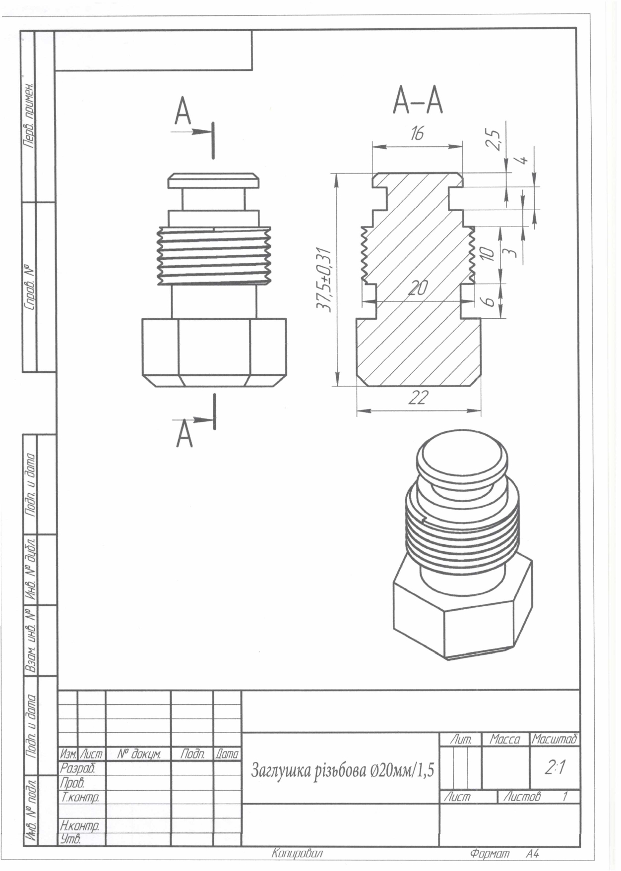
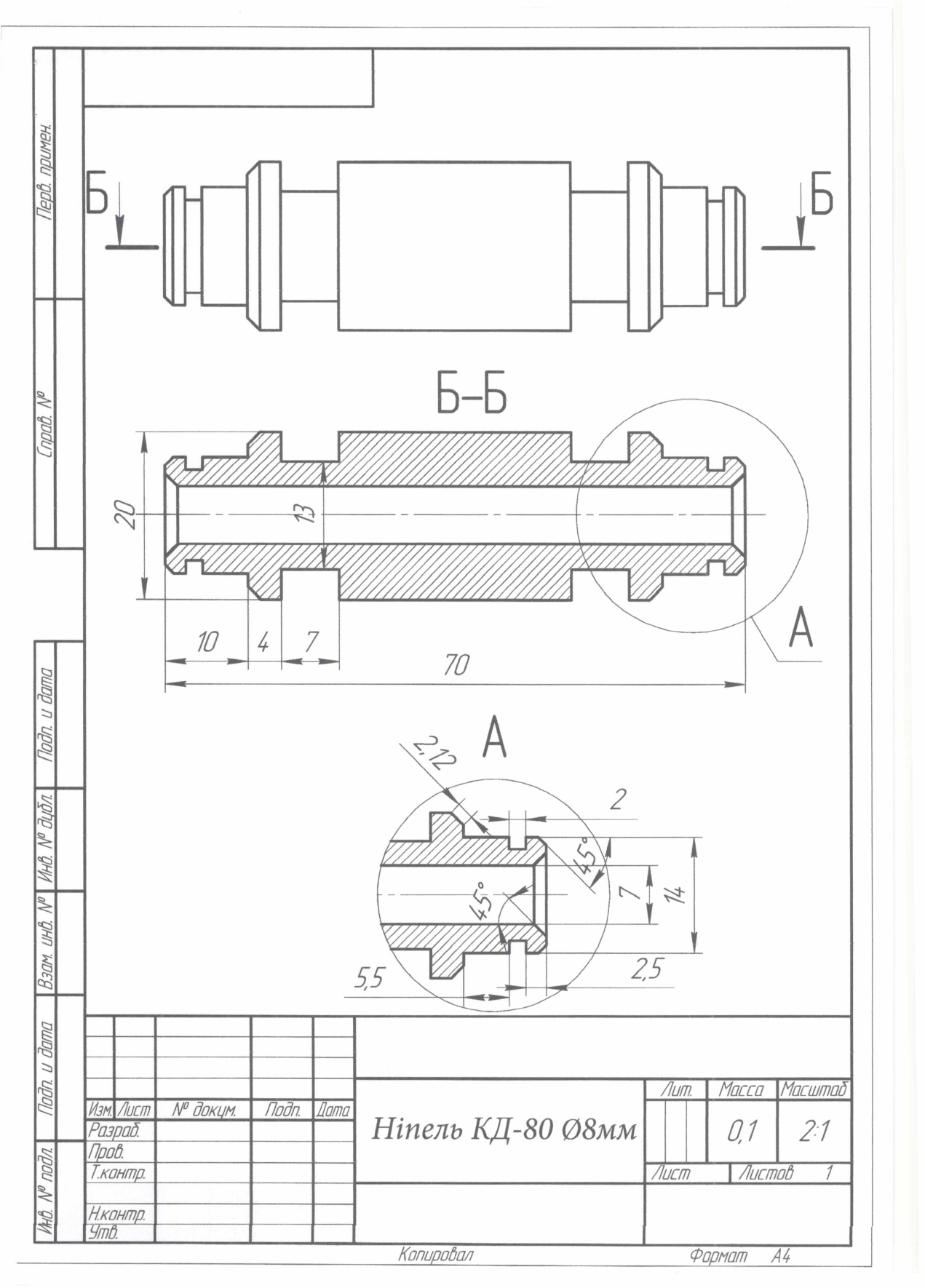
ЧАСТИНИ ДО СЕКЦІЙ МЕХАНІЗОВАНОГО КОМПЛЕКСУ 1КД-80

Ідентифікатор закупівлі:   UA-2026-04-03-011228-a

Очікувана вартість:                             4 537 744,00 грн  без ПДВ

Обгрунтування доцільності закупівлі частин секцій механізованого кріплення 1КД-80 (1)_page-0001 Обгрунтування доцільності закупівлі частин секцій механізованого кріплення 1КД-80 (1)_page-0002 Обгрунтування доцільності закупівлі частин секцій механізованого кріплення 1КД-80 (1)_page-0003Технічне завдання на закупівлю частин секцій механізованого кріплення 1КД-80 (1)_page-0001 Технічне завдання на закупівлю частин секцій механізованого кріплення 1КД-80 (1)_page-0002 Технічне завдання на закупівлю частин секцій механізованого кріплення 1КД-80 (1)_page-0003 Технічне завдання на закупівлю частин секцій механізованого кріплення 1КД-80 (1)_page-0004 Технічне завдання на закупівлю частин секцій механізованого кріплення 1КД-80 (1)_page-0005 Технічне завдання на закупівлю частин секцій механізованого кріплення 1КД-80 (1)_page-0006 Технічне завдання на закупівлю частин секцій механізованого кріплення 1КД-80 (1)_page-0007 Технічне завдання на закупівлю частин секцій механізованого кріплення 1КД-80 (1)_page-0008 Технічне завдання на закупівлю частин секцій механізованого кріплення 1КД-80 (1)_page-0009 Технічне завдання на закупівлю частин секцій механізованого кріплення 1КД-80 (1)_page-0010 Технічне завдання на закупівлю частин секцій механізованого кріплення 1КД-80 (1)_page-0011 Технічне завдання на закупівлю частин секцій механізованого кріплення 1КД-80 (1)_page-0012